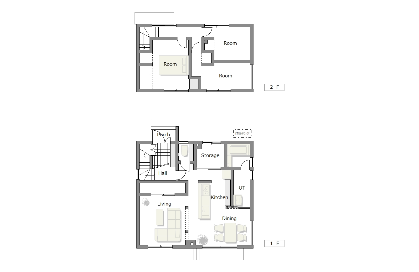
PLAN

設計図

POINT

リフォームのポイント

築40年の住宅をリノベーション『木の香り感じる家』 
LDKは家族の集まる場所。木の香り感じる床をポイントに開放感のあるひとつづきの間取りに。
シンプルな中にさりげなくアクセントを加えた空間。外観もシンプルな形状でありながらダークグレーを基調とした色合いで重厚感をプラス。コストを抑えつつも念願の戸建住宅に住む楽しさをリノベーションでつくりたい。そんなお施主様の想いをご予算内でカタチにしていきました。

 

こだわりの床材『プライフローリング』
1階の床材には、札鶴ベニヤ株式会社の「RUSTIC プライフローリング」を使用。
本物の木の感触を感じられ、歩行感もよいのが特徴です。
汚れても掃除がしやすく、無垢材にあるような反りや収縮がほとんどでないという優秀なフローリング。
1枚のサイズが150×900mmで、それぞれ木目に個性がある為、乱張りに施工することでより自然の風合いを感じられます。今回選ばれたオーク材のもつ感性を生かした木目の表情が、ナチュラルでありながらなインパクトのあるリビングダイニングを演出しています。

 

既存の柱や構造を活かした開放感のある空間づくり
予算内に収めるよう、既存の柱・構造を極力活かし可能な限り開放感をつくる事を意識しました。収納棚や衣類を掛けるバーなど内装の細かい部分は、端材などを利用しお施主様がDIYで。工事費を削減しつつ、ご希望のイメージをしっかり盛り込んだ住まいづくりが実現できました。

当初、アイランド型を希望されていたキッチンは、予定していた設置場所に撤去できない柱があることが判明したため、あえてそれを利用して袖壁をつくりペニンシュラ型のオープンタイプへ変更。ペニンシュラ型にしたことで、アイランド型よりもコストを抑えながら、ご希望の見通し良く回遊性のある空間づくりを叶えています。
また、キッチン本体には、床の色合いに合う面材がみつかり『LIXIL シエラS』をご選択。更にコストを抑えることができ、その分で、グースネックタイプのタッチレス水栓「ナビッシュ」、引出しのソフトクローズ機能、IHコンロや強化ガラスの油飛び跳ねガード、横壁取付スリムタイプのレンジフードのオプション付加で機能性も充実。イメージ通りのキッチンの仕上がりに奥様も大変喜ばれていました。

玄関ドアは、既存のランマを解体し天井まで高さのあるもので開放感をつくり、木目柄で外装のアクセントに。
和室の格子窓だった部分は、『LIXIL インプラスforリノベーションシリーズ』の断熱内窓に入れ替え。木目柄が美しい樹脂サッシは、空間のデザイン性と断熱性能を向上させるだけでなく結露の軽減にも。

2Fの収納は、あえて建具を取り付けないことでコストカット。扉の開け閉めがないことでワンアクションを減らし、モノの出し入れをスムーズに行えることや、通気性が良いというメリットにもなります。

 

壁紙コーディネートは、ご家族のお好みでアクセントクロスを各部屋に。
建物に囲まれた旗竿地のため、天井と壁は白をベースカラーとして少ない採光でも光を反射させ、室内が明るくなるようにしました。
リビングにはご主人の好きなデニム色、玄関とキッチン背面には落ち着いたコンクリート調クロスで、玄関から目線が繋がり奥行きを感じられるように。暗くなりがちな、北側にあるトイレのアクセントカラーには黄色を取り入れて明るい印象に。UTには清潔感のあるグリーン基調のファブリーズクロス、2F主寝室はカーテンと床材に合うような自然を意識したグリーン色を。
子供部屋は、それぞれが好きな柄を選んでもらい、お気に入りのお部屋ができたと思います。

予算や間取り、立地など制限のある中で工夫を凝らしたリノベーションが、これからのご家族の暮らしを豊かに彩っていくのが楽しみです。

 

※こちらの物件は、施工中の様子を取材させていただき『リノベーションリポート』としてブログに掲載しています。
解体前の様子から完成までを詳しくお伝えしていきますので、ぜひご覧ください!

また、不動産購入の計画段階~着工までの手続きをまとめた『リノベーションの豆知識』もございます。
これから中古住宅を購入してリノベーションしてみよう!とお考えの方は、あわせてお読みください♪

関連キーワード
#戸建て #リノベ #リビング #キッチン #浴室 #洗面室 #トイレ #和室を洋室に #窓サッシ・玄関ドア #玄関・ホール #屋根

SEARCH

どのようなプランをお探しですか?

OPEN 絞り込む
CLOSE
お電話でのお問い合わせは
お電話でのお問い合わせは